Timber Frame Homes
Luma
A light-filled timber home shaped by simplicity, clarity, and smart space design.

Overview
A home designed with clarity, comfort and warmth
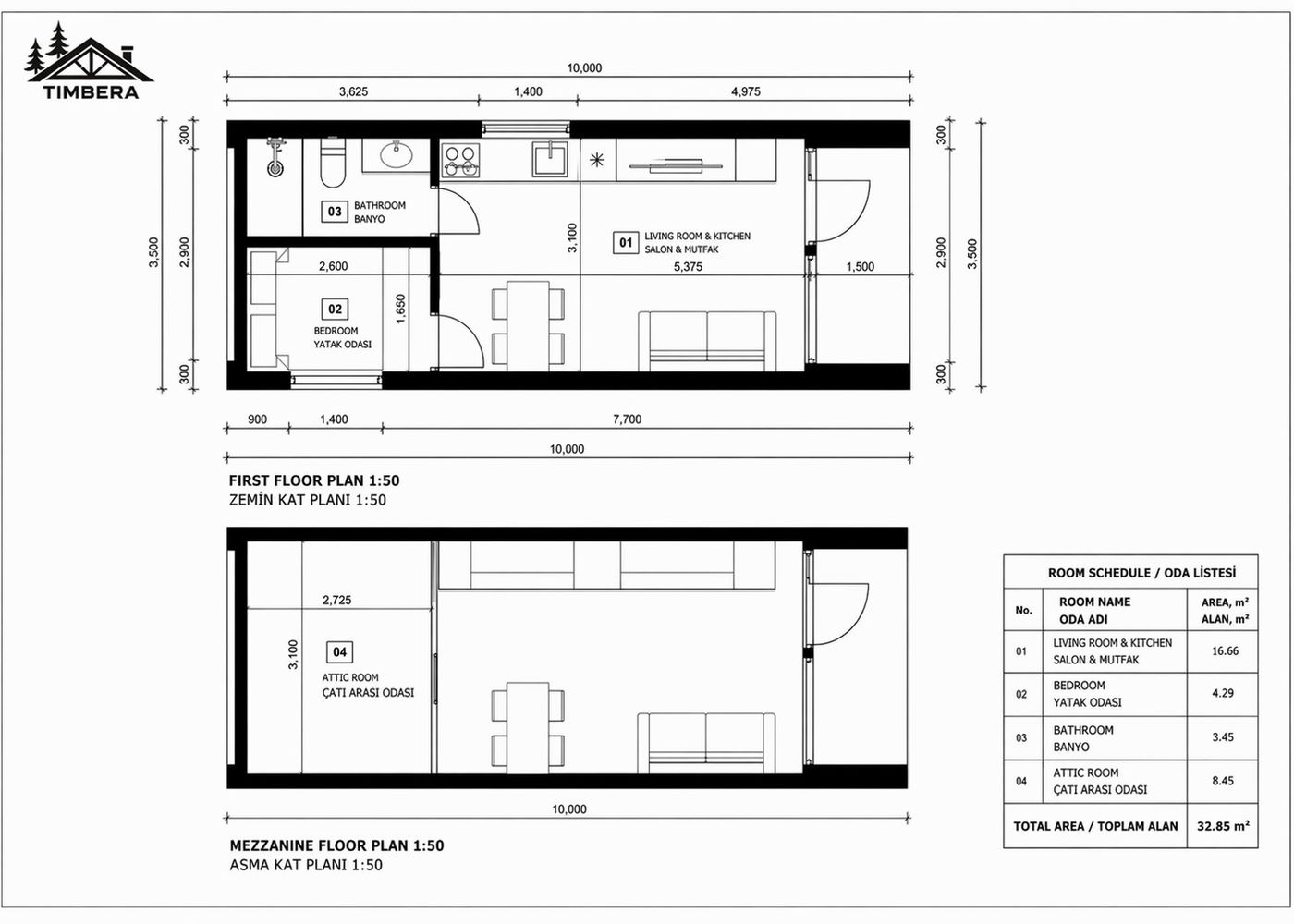
Luma is a compact timber home defined by its clean geometry and strong connection to natural light. The distinctive gable front, fully opened with double-height glazing, transforms the interior into a bright and airy living space despite its modest footprint. The layout is intentionally simple and efficient. A linear organization allows for a seamless flow between the living area and kitchen, while the private bedroom and bathroom are discreetly positioned to maintain comfort and usability. Above, a mezzanine level adds a flexible secondary space, ideal for sleeping, working, or storage, without increasing the overall size of the home. Designed with both individual use and larger developments in mind, Luma Frame adapts easily to different contexts, from private retreats to multi-unit hospitality projects.
Key features
What defines this model
- • Signature gable-front architecture
- • Double-height panoramic glazing
- • Mezzanine loft for flexible use
- • Clean, efficient linear layout
- • Strong natural light throughout
- • Compact bedroom with privacy
- • Full timber structural system
- • Ideal for repeatable modular setups
- • Modern minimal exterior with warm interior
Gallery
Visual details of the design





Specifications
Practical details at a glance
Total Area
32.85 m²
Layout
1 Bedroom + Mezzanine
Floors
Ground + loft
Living Area
Open-plan kitchen & lounge
Plans
Drawings and layout studies



Next step
Interested in this model?
Tell us about your site, your goals and the type of timber home you’re planning, and we’ll help define the right next step.
Discuss this home